Paul O'Driscoll Auctioneer & Valuer

Euro Business Park, 18c Little Island Little Island, T45 YC85

Industrial Property (480 sq. metres) For Sale

Price On Application

Print additional images & map (disable to save ink)

Photo 1 of Euro Business Park, 18c Little Island, Little Island

Telephone:

(025) 39321

View Online:

www.paulodriscollauctioneer.ie/1065132

Key Information

Address Euro Business Park, 18c Little Island Little Island, T45 YC85
Price Price On Application
Style Industrial Property
Size 480 sq. metres
Status For sale
PSRA License No. 004540

Additional Information

FOR SALE
Unit 18C Euro Business Park, Little Island, Co Cork T45 YC85

 

Excellent opportunity to acquire a conveniently located industrial property within the well-established Euro Business Park, Little Island close to all major road infrastructures and only 3k from the Jack Lynch Tunnell/M8 Motorway.
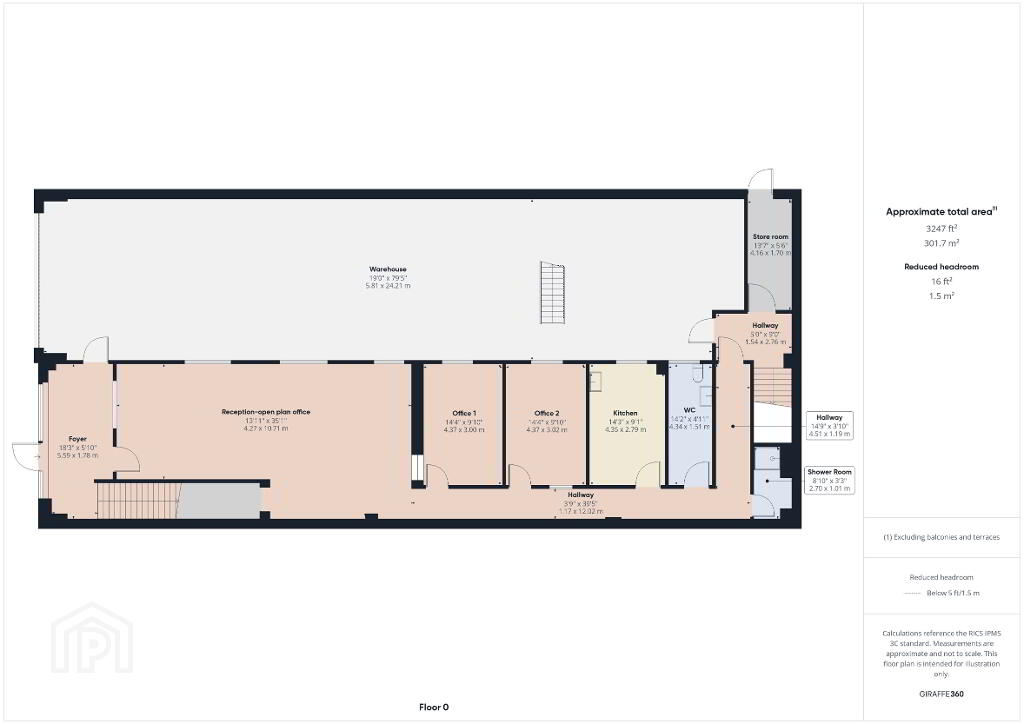
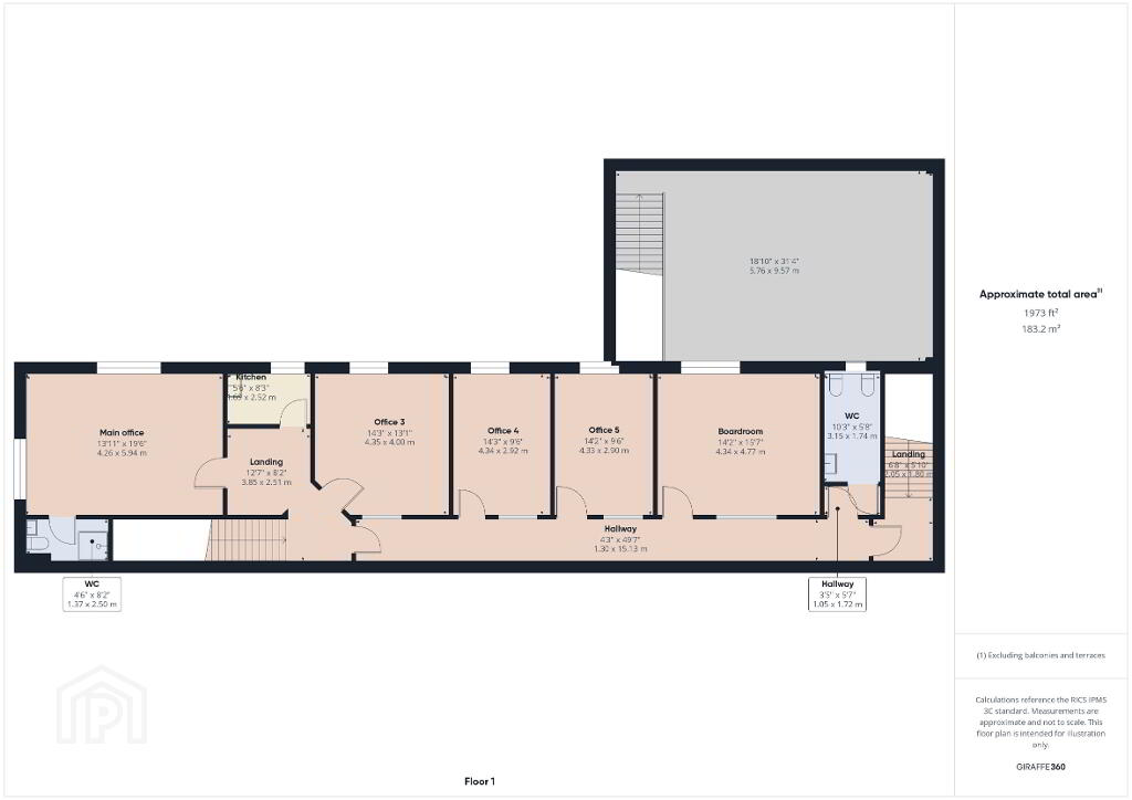
For sale with vacant possession and fully fitted the unit extends to approximately 5,200 sq. feet/480 sq. meters over two floors.

Mid terraced unit that is internally laid out with modern office accommodation arranged over ground and first floor levels. The property has a mix of open-plan office space, private meeting rooms, canteen and toilet facilities, all finished to a good modern standard throughout with LED lighting throughout. Three phase power.
Large warehouse with full height roller shutter door for HGV deliveries.
Neighbouring occupiers include Screwfix,


• Ample parking to the front.
• This is a well-established and conveniently located industrial / trade location.
• The subject property comprises of over 5,200 sq. feet/480 sq. metres over two floors.
• Full height roller shutter door.
• 3 phase electricity.
• LED lighting throughout.
• Canteen facility on two floors.
• Toilets and shower facilities.
• All services are connected.

  • Paul O'Driscoll Auctioneer & Valuer

    Paul O'Driscoll Auctioneer & Valuer

    (025) 39321

Photo Gallery

Photo 1 of Euro Business Park, 18c Little Island, Little Island Photo 2 of Euro Business Park, 18c Little Island, Little Island Photo 3 of Euro Business Park, 18c Little Island, Little Island Photo 4 of Euro Business Park, 18c Little Island, Little Island Photo 5 of Euro Business Park, 18c Little Island, Little Island Photo 6 of Euro Business Park, 18c Little Island, Little Island Photo 7 of Euro Business Park, 18c Little Island, Little Island Photo 8 of Euro Business Park, 18c Little Island, Little Island Photo 9 of Euro Business Park, 18c Little Island, Little Island Photo 10 of Euro Business Park, 18c Little Island, Little Island Photo 11 of Euro Business Park, 18c Little Island, Little Island Photo 12 of Euro Business Park, 18c Little Island, Little Island Photo 13 of Euro Business Park, 18c Little Island, Little Island Photo 14 of Euro Business Park, 18c Little Island, Little Island Photo 15 of Euro Business Park, 18c Little Island, Little Island Photo 16 of Euro Business Park, 18c Little Island, Little Island Photo 17 of Euro Business Park, 18c Little Island, Little Island Photo 18 of Euro Business Park, 18c Little Island, Little Island Photo 19 of Euro Business Park, 18c Little Island, Little Island

Location

Visit www.paulodriscollauctioneer.ie for further details.