Share with a friend

Please check you have entered all details correctly:

Options

Euro Business Park, 18c Little Island Little Island, T45 YC85

Price On Application

Key Information

Address Euro Business Park, 18c Little Island Little Island, T45 YC85
Price Price On Application
Style Industrial Property
Size 480 sq. metres
Status For sale
PSRA License No. 004540

Additional Information

FOR SALE
Unit 18C Euro Business Park, Little Island, Co Cork T45 YC85

 

Excellent opportunity to acquire a conveniently located industrial property within the well-established Euro Business Park, Little Island close to all major road infrastructures and only 3k from the Jack Lynch Tunnell/M8 Motorway.
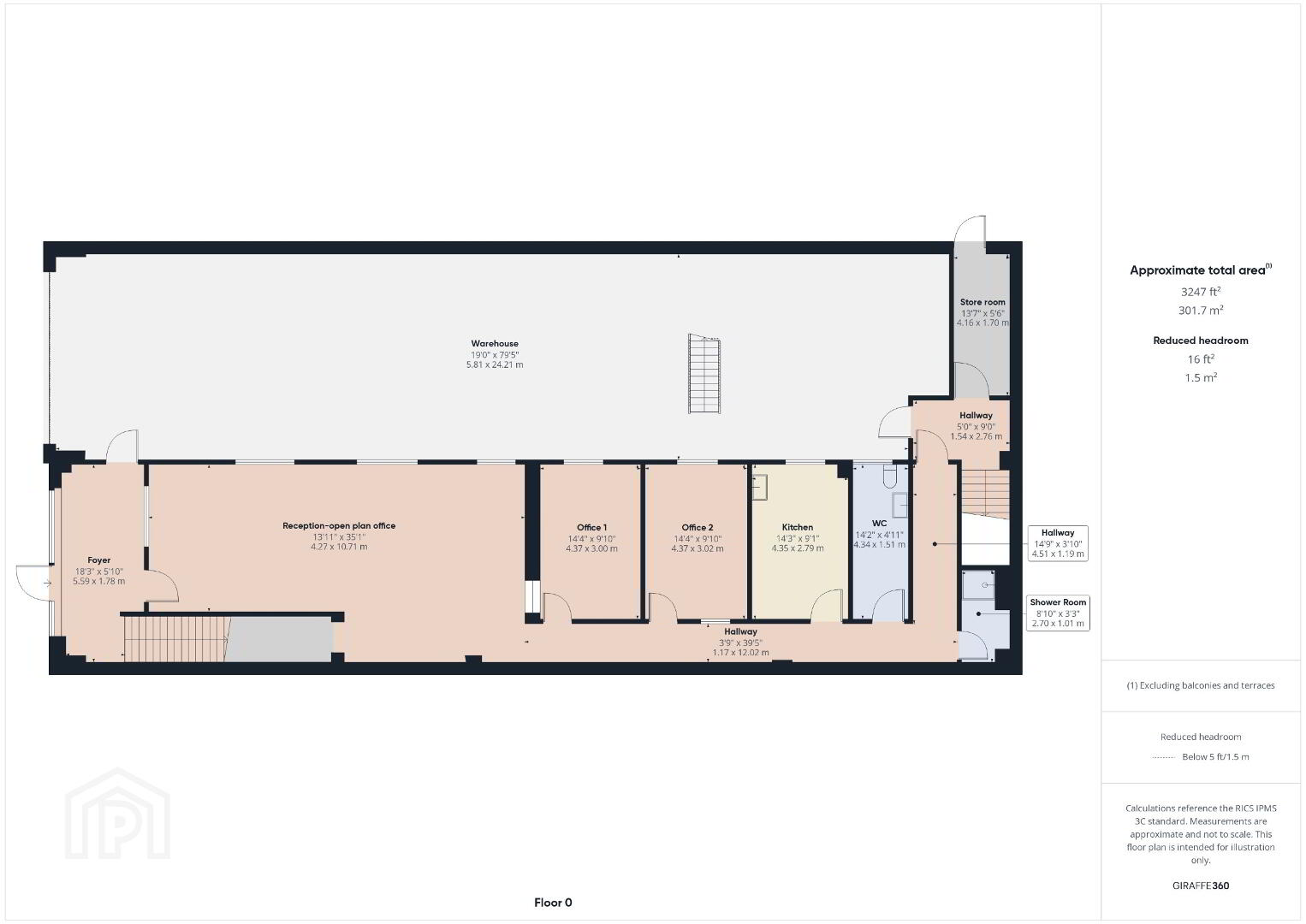
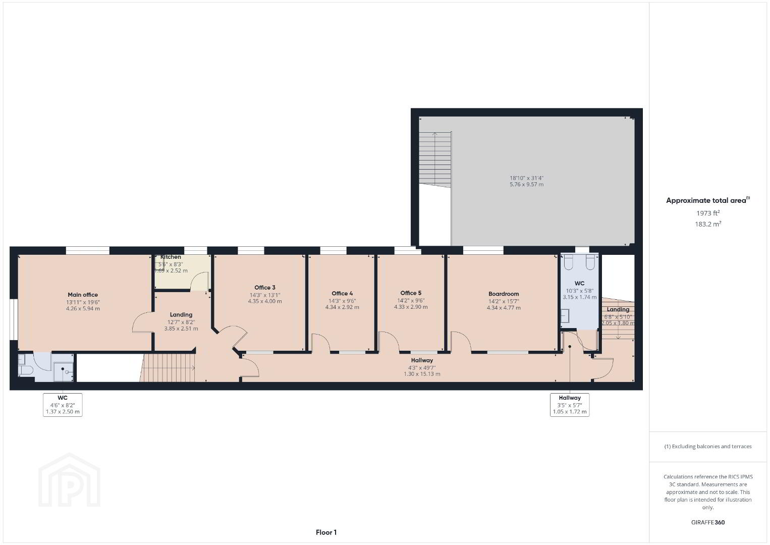
For sale with vacant possession and fully fitted the unit extends to approximately 5,200 sq. feet/480 sq. meters over two floors.

Mid terraced unit that is internally laid out with modern office accommodation arranged over ground and first floor levels. The property has a mix of open-plan office space, private meeting rooms, canteen and toilet facilities, all finished to a good modern standard throughout with LED lighting throughout. Three phase power.
Large warehouse with full height roller shutter door for HGV deliveries.
Neighbouring occupiers include Screwfix,


• Ample parking to the front.
• This is a well-established and conveniently located industrial / trade location.
• The subject property comprises of over 5,200 sq. feet/480 sq. metres over two floors.
• Full height roller shutter door.
• 3 phase electricity.
• LED lighting throughout.
• Canteen facility on two floors.
• Toilets and shower facilities.
• All services are connected.